Grundrisse
Bungalow Typ A2sind 2 nebeneinander liegende Bungalows vom Typ A mit gemeinsamer Terrasse. |
![]() |
![]() |
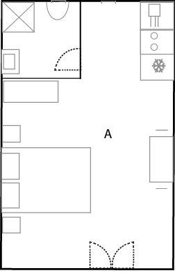
| Grundriss vom Bungalow Typ A Stein-Reihenhäuschen Wohnschlafraum mit Doppelbett 160x190/200 Küchenzeile mit Spüle, 2 Keramikplattenherd, Kühlschrank mit Gefrierfach, Geschirr, Dusche mit WC, Terrasse |
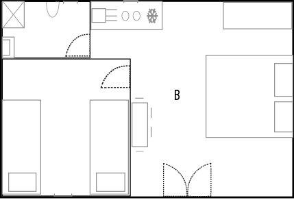
Grundriss vom Bungalow Typ B Stein-Reihenhäuschen Wohnschlafraum mit Doppelbett 160x190/200 Küchenzeile mit Spüle, 3/4 Keramikplattenherd, Kühlschrank / Gefrierer (2 Türen), Spülmaschine, Geschirr Kinderzimmer mit 2 getrennten Betten Dusche mit WC, Terrasse |
Grundriss vom Bungalow Typ B2 Stein-Reihenhaus Großer Wohnschlafraum mit Doppelbett 160x190/200 Küchenzeile mit Spüle, 3/4 Keramikplattenherd, Kühlschrank / Gefrierer (2 Türen), Spülmaschine, Geschirr Kinderzimmer mit 1 Doppelbett und 1 Einzelbett Dusche mit WC, Terrasse |
![]() |
![]() |
![]() |
| Grundriss vom Bungalow Typ Club Chalet freistehend Schlafzimmer mit französischem Bett 140x190/200 Kinderzimmer mit 2 getrennten Betten Wohnraum mit Küchenzeile mit Spüle 2 Keramikplattenherd, Kühlschrank / Gefrierer (2 Türen), Geschirr, Dusche, WC, Überdachte Terrasse |
Grundriss vom Bungalow Typ Samoa Chalet freistehend Schlafzimmer mit französischem Bett 140x190/200 2 Kinderzimmer mit jeweils 2 getrennten Betten Großer Wohnraum mit Sitzecke Küchenzeile mit Spüle, 4 Keramikplattenherd, Kühlschrank / Gefrierer (2 Türen), Spülmaschine, Geschirr Dusche, WC, Überdachte Terrasse |
Grundriss vom Bungalow Typ Vanilla Chalet freistehend Schlafzimmer mit französischem Bett 140x190/200 2 Kinderzimmer mit jeweils 2 getrennten Betten Großer Wohnraum mit Sitzecke Küchenzeile mit Spüle, 4 Keramikplattenherd, Kühlschrank / Gefrierer (2 Türen), Spülmaschine, Geschirr Dusche, WC, Überdachte Terrasse |
Bungalow Typ A2







